2022년 4월 의뢰받았던 작업
이때 받았던 작업은 위 두 실제 인테리어 사진처럼 모노톤의 모던주택을 소형 하우징에다가 해달라는 의뢰였음
요즘에야 대리석 벽감 침대로 폴리싱 바닥 구현이 가능하지만 이 시절에는 그 하우징 소품이 없었던 관계로
나무바닥으로 대체 하였었다

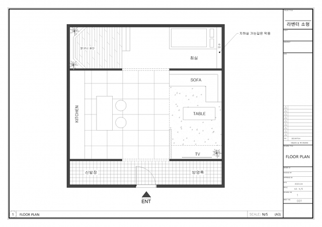
작업을 하기전 간단한 계획을 평면도로 작업하여 고객에게 전달 하였음
부분적으로 변경 될 수도 있지만 기본적인 구조는 이렇게 가겠다 라는걸 우선 전달
그림을 그릴때는 전체를 바라보고 그린다하고 실제 인테리어 역시 마찬가지다
다만 파판 하우징의 경우는 띄우고 뭐하고 하다보면 매우 과정이 번거롭기 때문에 한곳에서부터 차근차근 만들어 나가는게 좋다.
우선 입구를 먼저 만들도록 하자.
입구는 순백칸막이와 다날란 칸막이 문으로 심플하게 작업해준다.
입구가 만들어지면 극단용 옷장과 순백칸막이를 이용하여서
초기 계획대로 이곳에 신발장을 만들어준다.
신발장을 만든 후에는 방명록을 놓을 낮은 장을 하나 만들어주도록 한다.
그리고 바닥에 타일을 깔아주는데 이때 타일을 두겹으로 깔아준다.
왜냐하면 한겹은 천장으로 띄워서 쓰기위한 목적이다.
이때 타일만 띄워 올리는게 아니라 침대도 같이 올려줘야 하는데
타일만 띄워올리면 시야가 타일 위로 뚫고 올라가기 때문이다.
반드시 침대 (혹은 돈의 여유가 되면 실내용 연못) 로 시야를 차단해줘야 한다.
파판 모든 하우징의 공정 이론은
반드시
벽 -> 천장 -> 바닥
이 순서로 가야한다.
그래야 꼬이지 않는다
천장을 만들었으면 벽으로 게이트를 만들어주자
이러면 이 부분만 인형의집이나 세트장같이 얼추 모양이 나오기 시작한다
그리고 현관 위에 조명을 심어주고
타일과 방바닥은 대들보를 이용하여 분단시켜줘야 이쁘다
이제 방명록을 놔주면 기본적인 세팅이 끝난다.
화분이나 액자 등 가구는 지금 세팅하고 싶어도 참자.
웬만해선 가구수를 고려해서 가장 마지막에 세팅해야 한다.
이걸로 얼추 현관 부분이 끝났다.
이어서주방을 만들어보자.
우선 주방을 만들땐 상부장을 먼저 만들어주자.
상부장을 만들었으면 이제 하부장을 만들어 줘야 하는데
하부장의 경우 아래층에서 띄워서 올려줘야 한다.
파판 하우징을 하면서 초보자들이 가장 힘들어하는 것중 하나가 지하에서 띄워 올리는 것이다.
왜냐면 좌표를 정확히 맞추는 방법을 잘 몰라서 그렇다.
보통 바닥을 동일한 것으로 맞춰서 타일 눈금을 보는 방법도 좋지만
이 방법엔 예외가 존재하는데 라벤더 소형의 경우는 1층과 지하가 바닥 눈금이 따로논다는 점이다.
그래서 이런경우는 바닥징을 활용해주면 좋다
———
그런데 지금은 2022년이 아니라 한달있으면 2025년이다.
이 원시시대엔 이렇게 일일이 띄워 올렸지만
지금은 가능하면 BDT 툴을 쓰자
두번말한다 그냥 얌전히 BDT 툴 써라
바닥징을 위층에서 찍으면 아래층에서도 이렇게 보인다
다만 좌표를 확인했다해도 한번쯤은 정확한 좌표가 맞는지 테스트를 해봐야한다.
나같은 경우는 널빤지를 자주 이용해보곤 한다
널빤지를 아래층에서 올려본결과 정확한 좌표임이 확인되었다
그러면 이제 아래층에서 띄워올릴 가구를 조립을 시작한다.
부엌 장에 그어진 검은색 경계선은 순백칸막이를 까맣게 염색한 후
대각선으로 돌려서 끼워넣은것.
이제 조립이 완료되었으면 띄워올리자.
뒤에 놓은 대리석 칸막이는 주방 상판으로 쓰일 것이다.
띄우는건 존나 노가다다
하우징의 첫걸음은 인내다.
세번 말한다 BDT 써라 그냥
이제 띄워올렸으면 어느정도 주방의 모습이 갖춰지기 시작한다
허전한 것들을 채워보자
주방 벽은 반드시 타일을 깔아주자
빈칸막이를 이용하여 내장 벽마감을 붙여줘도 좋다
실제로 주방에는 기름나 얼룩이 묻는것을 방지하기 위해 유광타일을 쓰는것이 보편적이다.
마무리로 인덕션 위에는 후드를 설치해주자
이걸로 대략적인 주방이 완성됐다.
이제 거실로 넘어가자
우선 거실에는 창문이나 포인트벽을 두는게 좋다.
원래 초기 계획에는 창문을 넣어주고 싶었지만 소형은 지나치게 좁아서
창문을 넣어주기가 힘들다보니 결국 포인트벽으로 방향을 전환하게 됐다.
이 시점에서는 창문 넣기가 힘들었지만…
지금 시점에선 BDT로 인해 창문 우겨넣기도 쉬워졌다
얌전히 하우징을 하는 사람들은 BDT를 쓰도록 하자
그리고 모던 하우징에는 빠질 수 없는 벽걸이 티비를 설치해주고
침실과 공간을 나눌 파티션을 만들어준다.
그리고 거실하면 생각나는 소파를 만들어줘야 하는데
소파는 그냥 가구만 툭던져놓는거보다
이렇게 소파자리를 짜준다음 놓는게 이쁘다
이런식으로 말이다.
이쯤에서 문제가 발생했는데
아까전에 벽에다 박아놨던 티비가
방명록 옆 공간을 뚫고 튀어나와버렸다.
이 돌발상황을 해결하기위해
뚫고나온곳을 가려주려고 장을 하나 추가로 만들어줬다.
이쯤와서 거실 뒤편의 라인과 주방 라인을 맞추기위해
냉장고를 한개 만들어줬다.
다만 조금 불편한 부분은
원래 주방의 공식은 좌측에서부터
냉장고 -> 싱크대 -> 작업대 -> 렌지
이 순서로 만들어져야 한다.
이유는 냉장고에서 꺼낸 식품을 씻고 칼로 썰은다음 조리하기 위한 순서라 그렇다.
다만 집이 좁아서 싱크대를 만들지못하고 하다보니 지켜지지 못한 부분이라 아쉬웠다.
지금에 와서는 BDT로 순백칸막이 우겨넣기가 가능해져서 원안대로 싱크대를 넣을 수가 있다
그러니 꼭 BDT를 쓰도록 하자 ….
참고로 이 냉장고는 클릭하면
부대금고의 역할을 할 수 있게끔 만들어줬다.
이렇게 거실과 주방의 라인을 게이트로 맞춰줬다.
이 과정에서 소파와 파티션 색상을 다시 잡아줬다.
이제 천장을 만들어줄 차례다.
방의 정 중앙에 네모낳게 순백칸막이를 우선 두른다.
이는 우물천장을 만들어주기위한 사전 준비과정이다
천장 작업은 모든 하우징 노가다중 가장 짜증나는 노가다다.
마우스로 클릭하려해도 온갖게 클릭되고
방 전체에 깔개와 침대를 같이 올려준다는 작업이 꽤나 정신사나운 작업이기 때문
이렇게 깔개와 침대를 모두 올려주고…
또 올려주다보면…
우선 이런식으로 천장으로 전부 띄워놓으면 절반은 끝난거다.
이제 천장을 칠해주고 시야를 막은 침대를 천장보다 살짝 위로 올려준다음
평탄하게 나라시를 까줘야 한다.
나라시 작업을 할땐 이 가구의 도움이 크다
나무선반을 이용해서 천장에 굴곡이 없이 평평하게끔 잡아주자
진짜 개 지랄같이 느껴지겠지만 이 작업을 한건 2022년 원시시대이다
지금 하우징을 하는 사람들은 꼭 BDT를 써서 딸깍 하자
그러면 이렇게 우물천장이 완성된다.
이 우물천장은 간접조명으로 활용되는 만큼 불을 껐을때도 무드등이 들어오게끔
위치 설계를 처음부터 잘 잡아야 한다.
이제 거실 천장이 완성됐으면 부가적인 요소들을 만들어보자
거실 소파 위에는 펜던트 등을 만들어준다.
펜던트 조명선은 별궁의 촛대를 이용하는게 좋고
조명은 심플하고 가장 밝은 검은장막 탁상등을 써주면 좋다.
귀여운 모그리들도 빠지면 섭섭하니 소파 위에 장식으로 올려주고
마무리로 깔개와 화분을 놔주면
이렇게 거실이 완성되었다.
침실은 내가 만드는 과정을 찍질 않았었다
허전한곳을 채울만한 소품들을 추가하고
대략적으로 이걸로 하우징은 마무리가 되었다
마지막은 집에서 홈파티
가격은 노동비 500만길 + 가구비 500만길 = 총 1000만길 받고 작업했다
지금은 가구비도 비싸지고 길 가치는 내려가서 아마 소형 작업을 한다면 2000정돈 받지 않아야 할까 싶다…
가끔 현금으로 맡기려는 사람들도 있는데 나는 어떠한 경우에도 현금으로는 하우징을 절대로 받지 않는다 한다
하우징은 게임의 컨텐츠이지 그것이 현찰이 오가는 일이 되어선 안된다 생각하는게 내 개인적인 생각이기 때문
정 길이 없다면 그냥 파판 월정액으로 달라고 하는 편이다
하지만 무엇보다 가치있는 보상은 돈도 월정액도 아닌
만들어준 하우징을 소중하게 다뤄주는게 만든이에게 있어선 가장 가치있는 보상이라 생각한다
가끔 하우징을 만들어줘도 파판을 들어오지 않아 금방 집을 날려먹는 사람들이 있다
그럴때 가장 만든이는 아쉬움을 느낀다
파이널판타지14 한국서버 갤러리
Copyright ⓒ 유머갤럭시 무단 전재 및 재배포 금지
본 콘텐츠는 뉴스픽 파트너스에서 공유된 콘텐츠입니다.
















































